En exclusivité: Maison de charme du 19ème
Versoix
Description
Référence:
10072
Pièces:
7
Nb de salles de bain:
3
Nb de chambres:
3
Surfaces:
247 m2
Vue:
Campagne
Style:
Classique
État:
A rénover
Description
En exclusivité: Maison de charme du 19ème
Située à Versoix, au lieu-dit "Le Martinet", cette maison de charme datant du 19ème siècle fait partie de l'ensemble architectural protégé du Moulin de Sauverny, bâtiment historique qui sera bientôt restauré.
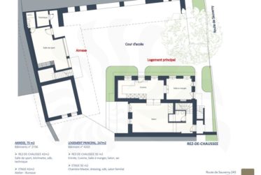
Dotée d'une cour intérieure de 250 m2 et d'un bâtiment annexe, cette maison à rénover a fait l'objet d'une étude de faisabilité qui est à disposition de l'acheteur.
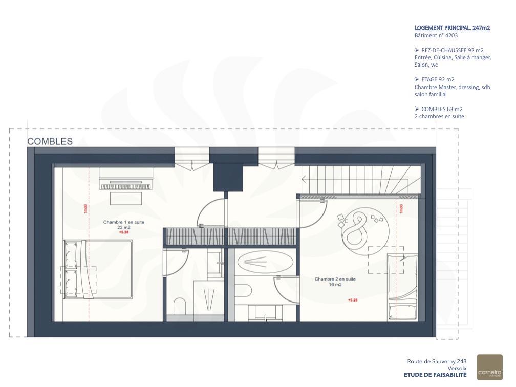
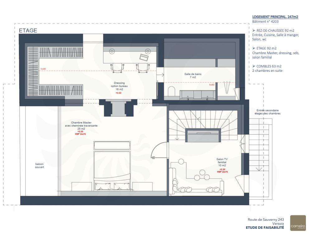
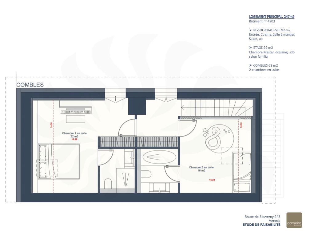
Le projet prévoit pour le logement principal de 247 m2 une habitation sur trois niveaux se composant comme suit:
- Au rez-de-chaussée, l'entrée, une cuisine habitable, la salle à manger, le salon et des toilettes visiteurs
- Au premier étage, un salon-tv et la chambre principale de 25 m2 avec son dressing, son espace bureau et une salle de bains attenante
- Dans les combles, deux chambres avec salles d'eau attenantes, de 16 et 22 m2
Le bâtiment annexe, de 75 m2 sur deux niveaux, pourrait offrir un logement de 84 m2 habitable, sujet à autorisation, ou recevoir une autre affectation, au gré de l'acheteur.
La parcelle est située en zone agricole.
Le coût de rénovation de l'ensemble du bâtiment principal et de l'annexe a été estimé à Fr. 485'000.--
Adresse
243 route de Sauverny
1290 Versoix
CHF 1'200'000.-
Agent immobilier
Jean-Louis Carreras
E-mail
jl.carreras@elucimmo.ch
Téléphone
+41 79 938 01 45
Contactez le courtier
