Appartement 5P au premier étage, 11, route des Jurêts à Choulex

Choulex
Description
Référence:
11006-3.01
Pièces:
5
Nb de salles de bain: 2
Nb de chambres:
3
Vue:
Campagne
Style:
Classique
État:
En construction
Surface PPE:
109 m2
Prix parking:
CHF 40'000.-
Parking:
En sus
Parking obligatoire:
Facultatif
Disponibilité:
30.03.2028
Description
Promotion: 11, route des Jurêts à Choulex

Situé au centre du village de Choulex, face à la zone agricole, cet immeuble d'architecture classique offrira 6 appartements en PPE et 11 places de parking en sous-sol.

Le village de Choulex est très bien desservi par les transports publics, le temps de trajet en bus jusqu'à Rive est de 20 minutes. L'école primaire se trouve à 5 minutes à pied et les commerces à 10 minutes en voiture ou en bus, à Belle-Terre.  

Choulex offre de magnifiques promenades, un terrain de sport, la réserve naturelle de Sionnet. C'est un lieu aujourd'hui très recherché par ceux qui souhaitent vivre à la campagne tout en étant très proches de la ville.

L'immeuble se caractérisera par:
  • Une architecture villageoise classique
  • Une classification énergétique HPE
  • Une grande luminosité
  • Privacité et confort de vie
  • Des équipements généreux
  • Des matériaux de qualité
  • Des jardins privatifs au rez-de-chaussée
  • Un jardin commun de près de 500 m2
  • Un chauffage par pompe à chaleur
  • Des panneaux solaires
  • Ascenseur intérieur et ascenseur à voiture

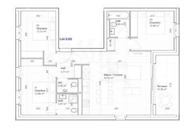
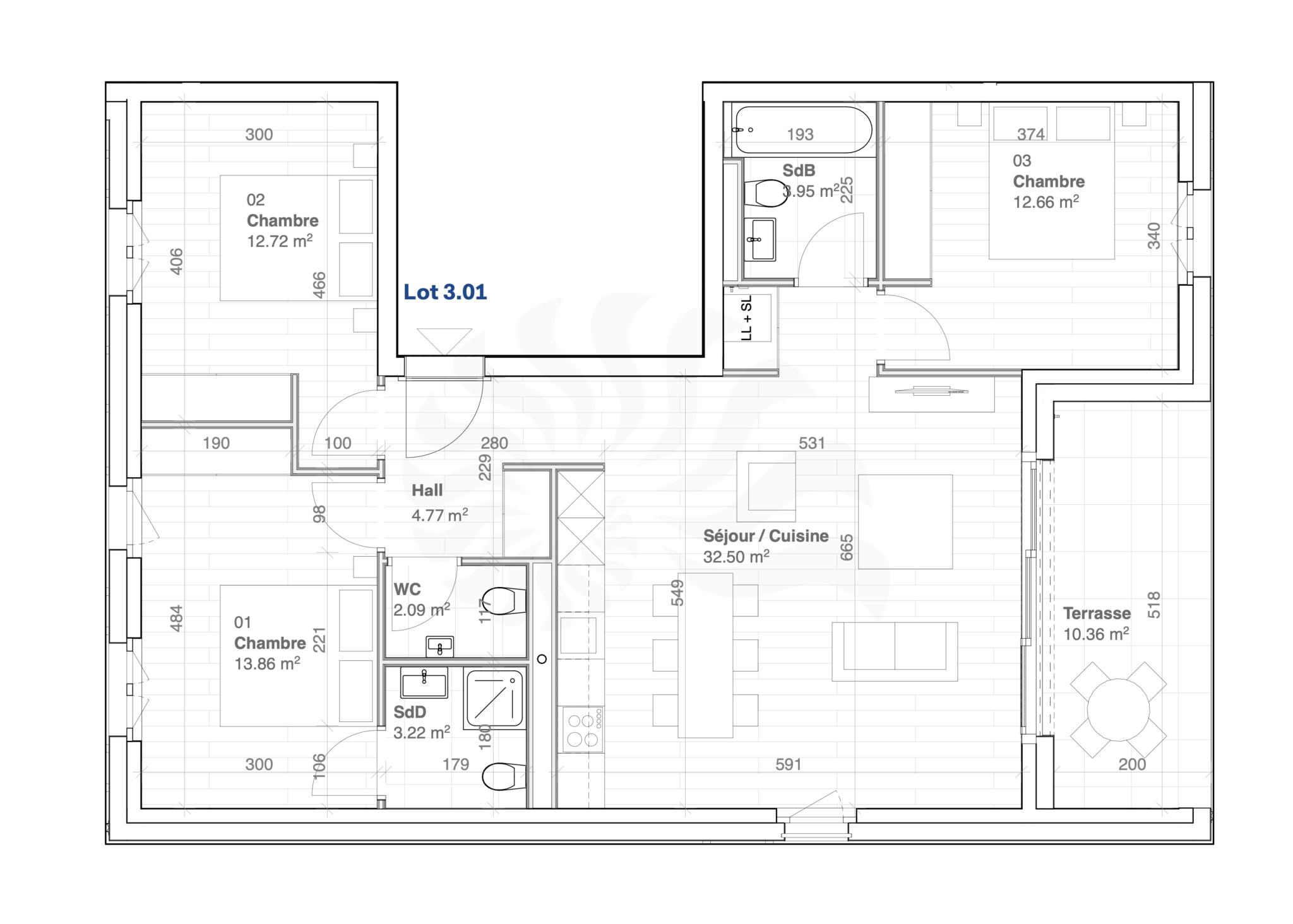
Lot 3.01, appartement 5 pièces de 109 m2 PPE, balcon de 10 m2, jardin commun de 478 m2, surface de vente 114 m2

Cet appartement de 5 pièces situé au premier étage se compose de la façon suivante:

  • Le hall d'entrée avec toilettes visiteurs
  • Le séjour avec cuisine ouverte, donnant sur le balcon
  • Une chambre principale avec salle de douche/toilettes attenante
  • Deux chambres à coucher 
  • Une salle de bains avec toilettes
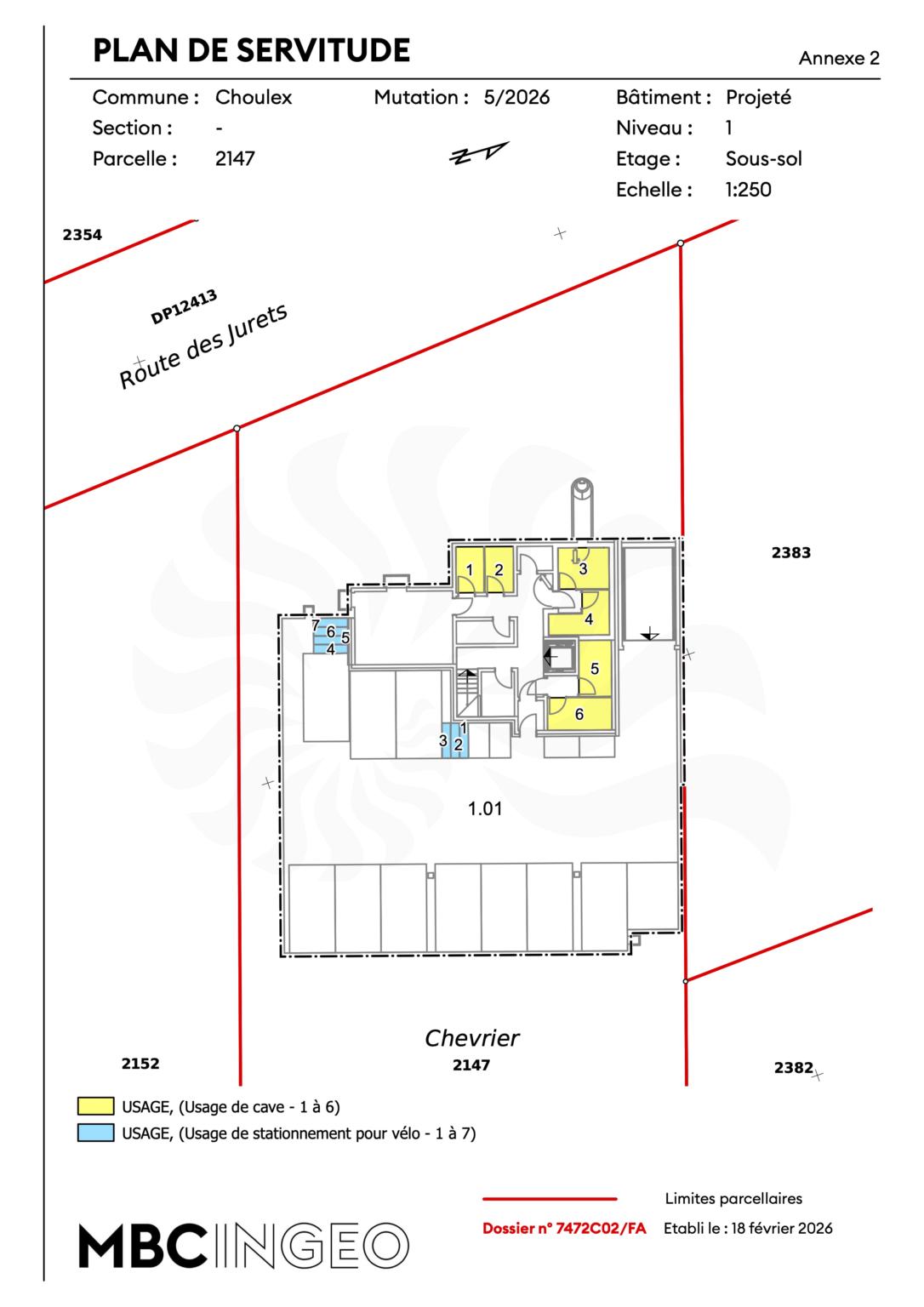
  • Une cave en sous-sol

11 places de parking disponibles en sous-sol,  au prix de Fr. 40'000..- / l'unité

Les ventes se feront en quote-part terrain + contrat d'entreprise générale. 

Pour la vente, contacter Elucimmo SA, Jean-Louis Carreras, au 079 938'01'45 ou par mail jl.carreras@elucimmo.ch
Adresse
11 route des Jurêts
1244 Choulex
Sur la carte
CHF 1'560'000.-
Jean-Louis Carreras
Agent immobilier
Jean-Louis Carreras
Contactez le courtier