Appartement 4P Rez-de-jardin dans la promotion 11, route des Jurêts à Choulex
Choulex
Description
Référence:
11006-2.02
Pièces:
4
Nb de salles de bain:
1
Nb de chambres:
2
Vue:
Campagne
Style:
Classique
État:
En construction
Surface PPE:
83 m2
Prix parking:
CHF 40'000.-
Parking:
En sus
Parking obligatoire:
Facultatif
Disponibilité:
30.03.2028
Description
Promotion: 11, route des Jurêts à Choulex
Le village de Choulex est très bien desservi par les transports publics, le temps de trajet en bus jusqu'à Rive est de 20 minutes. L'école primaire se trouve à 5 minutes à pied et les commerces à 10 minutes en voiture ou en bus, à Belle-Terre.
Choulex offre de magnifiques promenades, un terrain de sport, la réserve naturelle de Sionnet. C'est un lieu aujourd'hui très recherché par ceux qui souhaitent vivre à la campagne tout en étant très proches de la ville.
L'immeuble se caractérisera par:
- Une architecture villageoise classique
- Une classification énergétique HPE
- Une grande luminosité
- Privacité et confort de vie
- Des équipements généreux
- Des matériaux de qualité
- Des jardins privatifs au rez-de-chaussée
- Un jardin commun de près de 500 m2
- Un chauffage par pompe à chaleur
- Des panneaux solaires
- Ascenseur intérieur et ascenseur à voiture
CASATAX: Cet appartement est soumis au régime Casatax
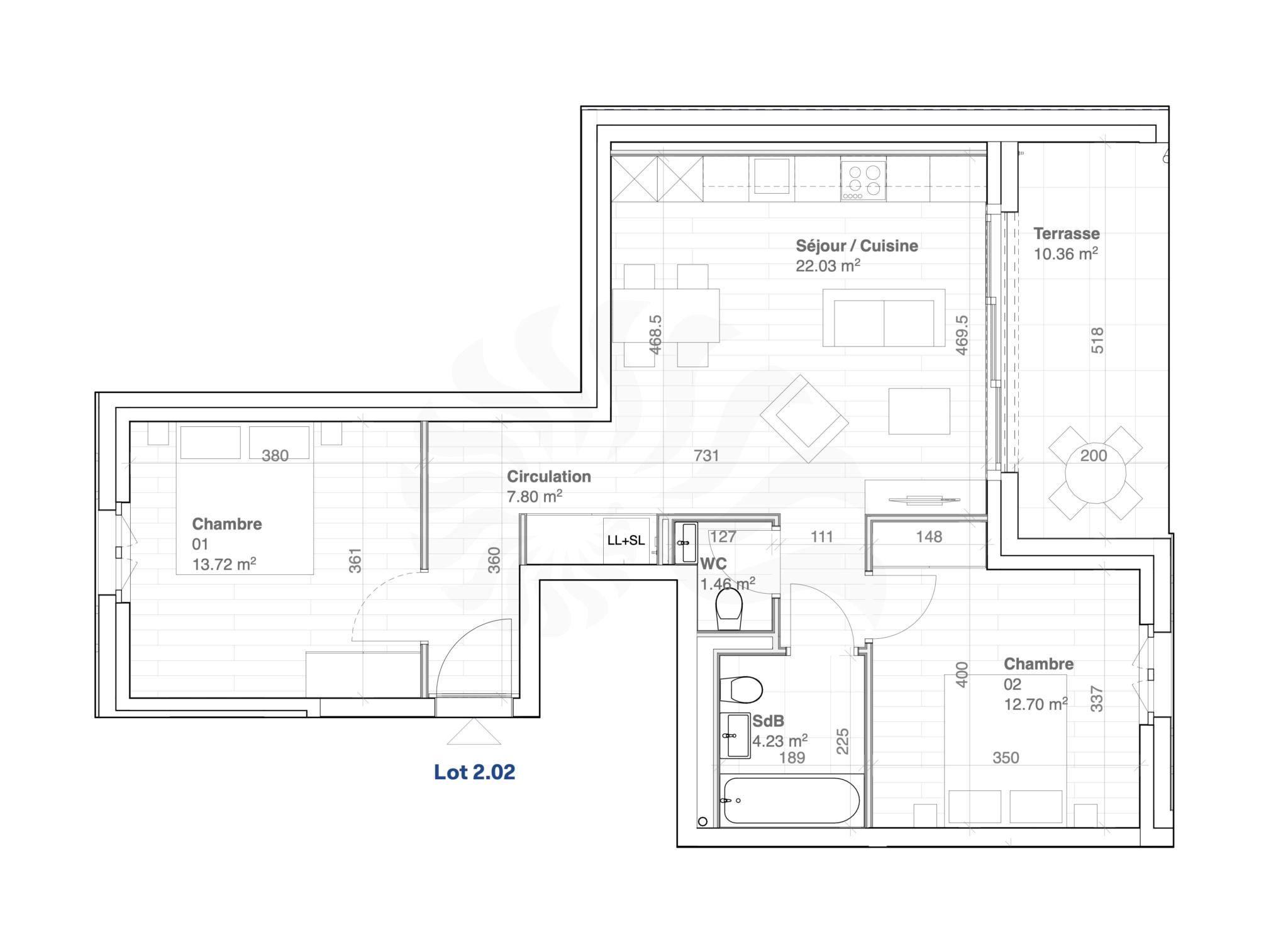
Lot 2.02, appartement 4 pièces de 83 m2 PPE, terrasse de 10 m2, jardin de 93 m2, surface de vente 88 m2 + jardin
Cet appartement de 4 pièces situé au rez-de-chaussée se compose de la façon suivante:
- Le hall d'entrée avec toilettes visiteurs
- Le séjour avec cuisine ouverte, donnant sur la terrasse et le jardin de 93 m2
- Une chambre principale avec salle de bains attenante
- Une chambre à coucher
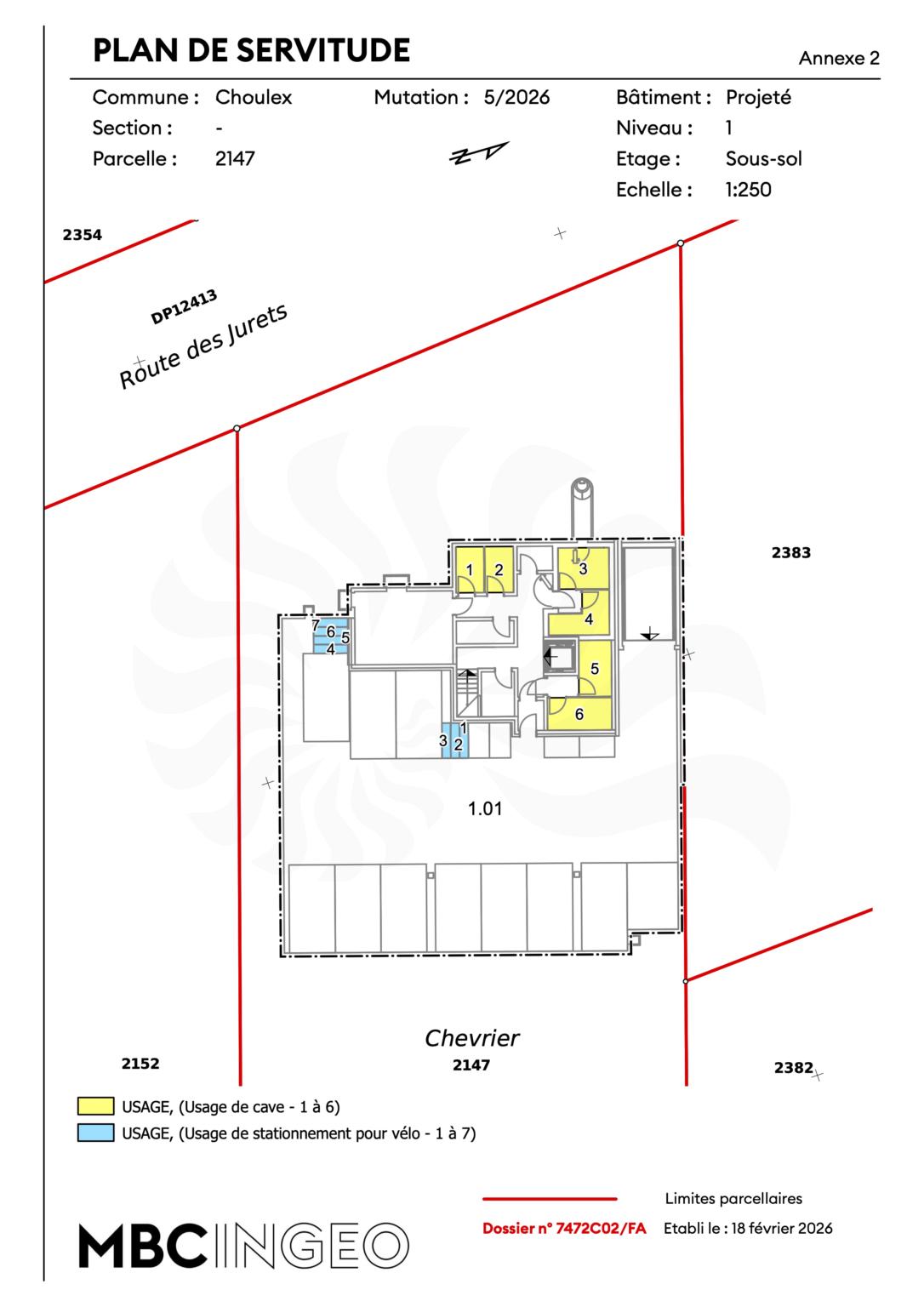
- Une cave en sous-sol
11 places de parking disponibles en sous-sol, au prix de Fr. 40'000..- / l'unité
NOTE: Cet appartement pourra, sur demande, être transformé en 3 pièces. Voir les plans dans le dossier
Les ventes se feront en quote-part terrain + contrat d'entreprise générale.
Pour la vente, contacter Elucimmo SA, Jean-Louis Carreras, au 079 938'01'45 ou par mail jl.carreras@elucimmo.ch
Adresse
11 route des Jurêts
1244 Choulex
Sur la carte
CHF 1'290'000.-
Agent immobilier
Jean-Louis Carreras
E-mail
jl.carreras@elucimmo.ch
Téléphone
+41 79 938 01 45
Contactez le courtier
